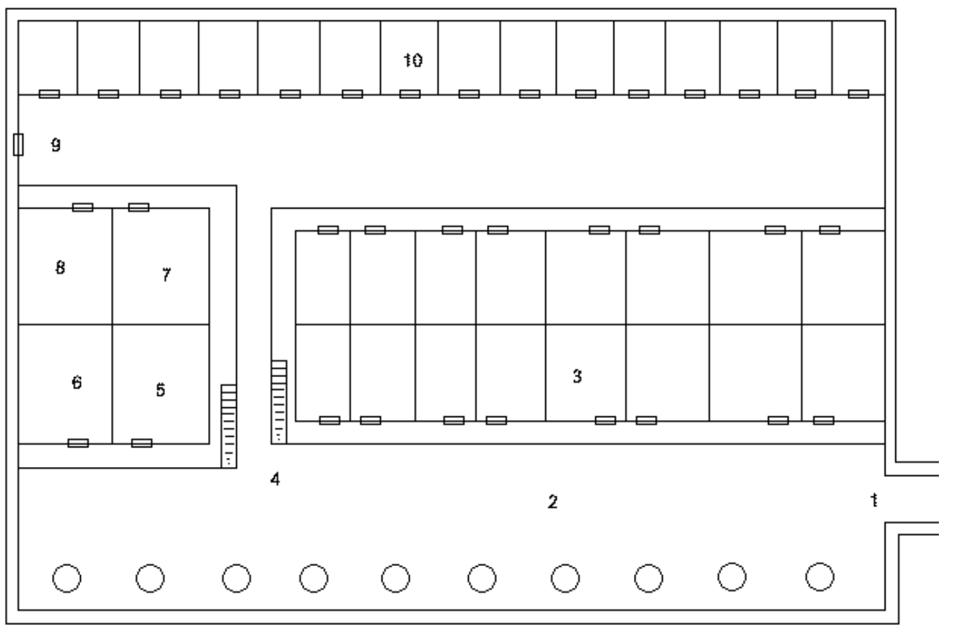
1. Maps

The White Palace - The Templars Quarters

Explore

1. Corridor to reception hall. This short corridor leads to the reception hall.

2. Main Hall. This airy, open section of the White Palace is forty feet in height. The walls, ceiling, and floor are made of pale yellow marble. The southern wall is covered in murals of desert scenes and of Balic in an idealized state. Tall, narrow windows on the upper half of the wall allow ample light to flow into this wide hall. Fluted pillars reach upwards to support the ceiling. To the north of the hall are the residences, two story structure reached by staircases. [Think of two story motels.] The residences blocks do not reach the ceiling, leaving the impression of being in an even larger space. 

3. Typical Room. The typical living quarters holds one to three people, depending on seniority. Furnishings are typically sparse, containing beds and dressers for each resident and perhaps a wardrobe as well. Small windows protected by artistic obsidian grates allow light into the room. A small painting or sculpture is also not usual.

4. Staircases. Two open backed staircases of marble with black obsidian railings lead up to the second floor of the residences. Note:

Rooms 5-8 are on the top level of the residence block. The lower four rooms have not been detailed.

5. Senior Chamber.  Plush rugs from Nibenay set on the floor and several pieces of sculpture (also from Nibenay) stand in the corners of the room. The dark wooden furnishing along with the artwork give the room a very exotic (by Balican standards) feel. Y

7. Guest Room. This room has a large area rug made of concentric rectangles. The furnishings are the standard Balican style. A painting of a Balican market hangs on one wall.

8. Senior Chamber.

9. Door. This door leads to the outer edge of the residence section. A covered walkway runs around the exterior of the templars quarters, connecting to several other sections. The door is made of stone and is usually barred during the night. The walkway is fifteen feet above the ground and there is no way down other than jumping.

10. Rooms. These rooms have various styles of decor, depending on their occupants. 

Kanka is built by just the two of us. Support our quest and enjoy an ad-free experience for less than the cost of a fancy coffee. Become a member.